Sonora, CA — The Sonora City Council will have two meetings today.
First, at a 3:00 p.m. special meeting, city leaders will focus on the new budget set to take effect on July 1st. It will include a presentation by the consultants, Citygate Associates, about an organization review and budget stabilization study.
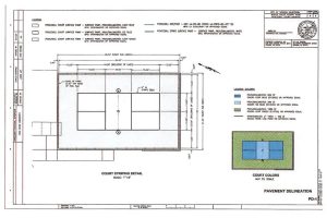
Later, at 5 pm, will be the regular meeting, and a vote on approving a new city budget. There will also be a vote on approving a construction contract for $175,000 related to the construction of a pickleball court at Woods Creek Rotary Park. The money is from state grant dollars via the Outdoor Access for All Act of 2018. Initially, there were plans for a basketball court, playground repairs, and other work. However, the focus shifted to a pickleball court due to the recent surge in popularity of the sport. There will also be a vote on approving a resolution recognizing June as LGBTQ Pride Month. At the most recent meeting, the council voted to place the issue on the future agenda (today).
Both meetings will be held at Sonora City Hall and are open to the public.

