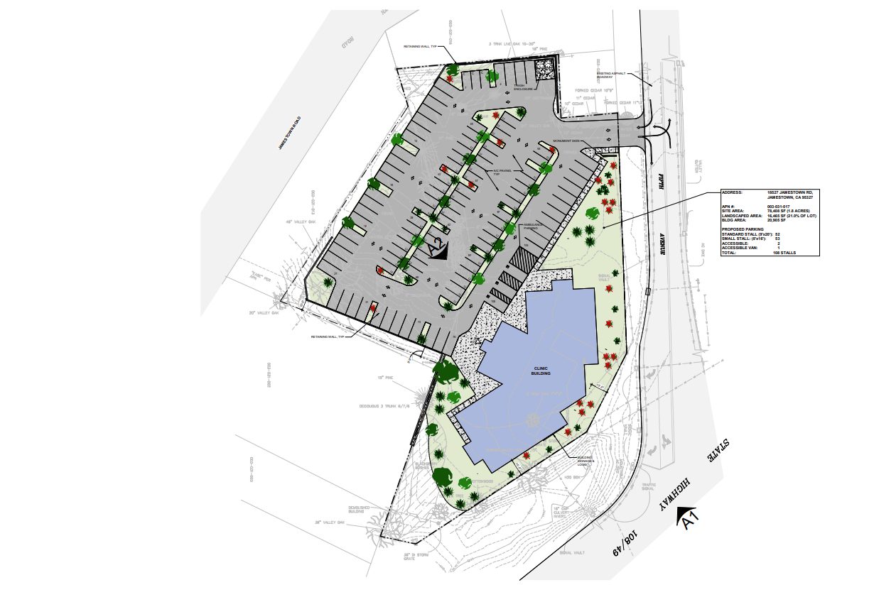
Jamestown, CA — A 22,000 square foot Mathiesen Memorial Health and Wellness Center is proposed to be built at 18530 Fifth Avenue in Jamestown.
An early step in the process is a notification to stakeholders, and a chance for community members to bring up any concerns or feedback that can help in the county’s project review process. The Tuolumne County Community Development Department reports that the comment period is currently open through July 24. More information can be acquired by contacting CDD at 209-533-5936 or emailing nrizzi@co.tuolumne.ca.us.
The facility plans to provide behavioral health services, family medicine, urgent care services, and associated infrastructure on a 1.8 acre site. It is situated northwest of the intersection of Fifth Avenue and Highway 108/49. Access would be via 5th Avenue. Water would be provided by TUD and sewer services from the Jamestown Sanitary District.
An existing Mathiesen Memorial Health Clinic is located at 18144 Seco Street in Jamestown.

